Zout

Topfloor in gewilde Urb. Altos de la Bahia XI met dakterras en zeezicht!

Zout
Ref: L1073
Download PDF brochure
  • Slaapkamer 2 Slaapkamer
  • Badkamer 1 Badkamer
  • Vermoeidheid 55.25m2 Vermoeidheid
  • Zwembad Gemeenschappelijk
  • Parkeren Privé

Met trots presenteren wij dit ontzettend fijne penthouse in gewilde Urb. Altos de la Bahia XI met privé dakterras met zwembad- en zeezicht en balkon met ochtend- en dagzon en met zwembadzicht!

Welkom in fijne Urb. Altos de la Bahia XI, een van de meest gewilde gebieden in Aguas Nuevas, Torrevieja, gebouwd in 2011 met slechts 88 huizen in de omgeving en een mooi zwembad met voldoende ruimte voor iedereen.

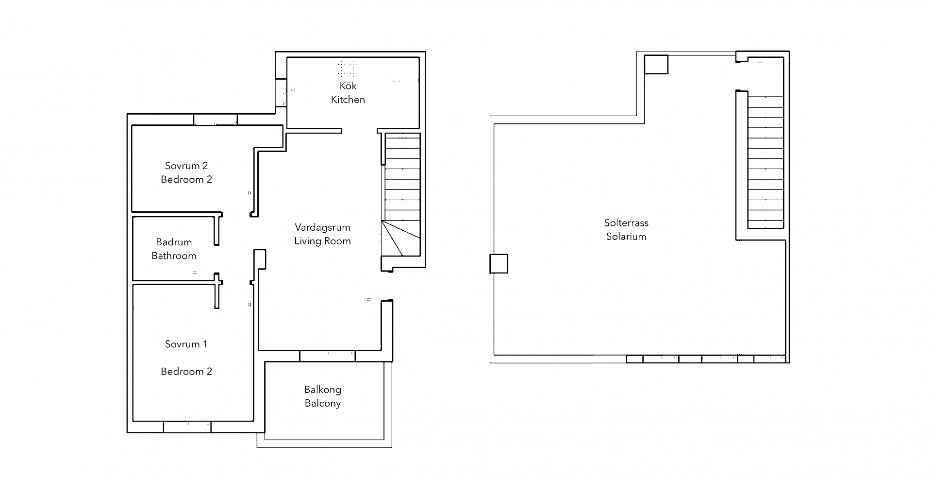
Via een trap bereikt u dit verzorgde en leuke penthouse en u wordt verwelkomd in een lichte woonkamer met voldoende ruimte voor een eettafel en bank en toegang tot het heerlijke balkon met voldoende ruimte voor 4-6 personen. Hier heeft u een ligging op het oosten met ochtend- en dagzon en voorzien van een zonnescherm, ideaal in de zomermaanden. De keuken grenst aan de woonkamer en is voorzien van een waterfilter. De twee slaapkamers bieden elk een tweepersoonsbed of twee eenpersoonsbedden en worden gescheiden door de mooie badkamer met douchecabine.

Vanuit de woonkamer gaat de trap omhoog naar het ontzettend gezellige en gastvrije dakterras met veel zon, uitzicht op het zwembad, zeezicht en goed ingedeeld met ruimte voor een eethoek, barbecue en ligbedden.

Het huis is modern en instapklaar, met geleide airconditioning door het hele huis en een nieuw gebouwde boiler.

Dit juweeltje in Urb. Altos de la Bahia XI wordt volledig gemeubileerd verkocht en heeft een eigen parkeerplaats binnen het afgesloten gebied.

Hier woon je op een steenworp afstand van het zwembad, ideaal voor degenen onder u die genieten van een dagje aan het zwembad of uitzicht willen hebben op het zwembad. Het dakterras biedt u uitzicht op zee en hier woont u op een uitstekende locatie voor wie dichtbij alle denkbare voorzieningen wil wonen. Het winkelcentrum Torremarina ligt op slechts 450 meter afstand met populaire restaurants zoals Mustard and Ketchup en de Boston Tavern met heerlijk avondentertainment. Mercadona (kruidenier) bevindt zich in hetzelfde winkelcentrum met een grote selectie vlees en een prachtige visbalie.

Hier heb je ook het populaire barpark op slechts 250 meter afstand, de perfecte plek om mensen uit de omgeving te ontmoeten.

Naar de stranden van de Middellandse Zee is het slechts ongeveer 950 meter naar de baaien en naar het populaire strand van La Mata 1,4 km.

Dit juweeltje is wie het eerst komt, het eerst maalt, want het gebied is ongelooflijk populair onder de Scandinaviërs en je woont hier op een perfecte locatie voor zowel permanente bewoning als vakantieaccommodatie!

Neem vandaag nog contact met ons op voor een bezichtiging en reservering van uw droomhuis in Spanje.

Sandra Ulricsson
Sandra Ulricsson

Verantwoordelijke makelaars

Details

Algemene informatie
  • ZwembadGemeenschappelijk
  • TuinNee
  • Oriëntatie N/A
  • WeergaveUitzicht op zee
  • ParkerenPrivé
  • EnergieklassecertificaatE
  • Bouwjaar2011
Het gebied
  • Leefruimte55.25 m 2
  • Terrassengebied43 m 2
  • Het is een garage10 m 2
Uitgaven
  • Onroerendezaakbelasting €223.46/Jaar
  • Gemeenschapskosten / per maand €38
Afstand
  • Afstand tot luchthaven42 Km
  • Afstand tot het strand900 M
  • Afstand tot locatie1.6 Km
  • Afstand tot golfen12 Km
  • Afstand tot winkels450 M
Eigenschappen
  • Gemeubileerd
  • Airconditioning
  • Gezamenlijk zwembad

Plaatsen

Vraag een bezichtiging aan
*
*
*
*
Wilt u meer informatie
*
*
*
Estoy de acuerdo

Utilizamos cookies propias y de terceros para realizar análisis de uso y de medición de nuestra web para mejorar nuestros servicios. Si continua navegando, consideramos que acepta su uso. Para obtener más información aquí.

Laat ons weten wat je zoekt!